דירות >
לה פלאנייה Residence Le Belvedere - Duplex 4 Pieces 8/10 Pers - Le Belvedere- 014Be -Plagne Villages Mae-1534
Residence Le Belvedere - Duplex 4 Pieces 8/10 Pers - Le Belvedere- 014Be -Plagne Villages Mae-1534
Preview only — see all hotel photos
See all 11 photos 1 /
11
6.0
חות דעת 1
Best options for your travel dates
להציג את המלון במפה
Residence Le Belvedere - Duplex 4 Pieces 8/10 Pers - Le Belvedere- 014Be -Plagne Villages Mae-1534
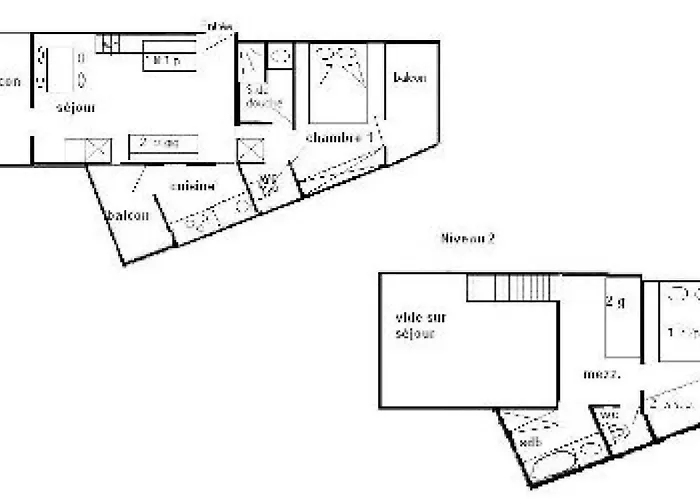
דירת לה פלאנייה Residence Le Belvedere - Pieces 534 מציעה מטבח וכמו כן גם חדרים עם מרפסת וטלוויזיה. לה פלאן זה כ-10 דקות נסיע בזמן ש-מעלית הסקי ארפט זה במרחק של 15 דקות נסיע מהנכס.
הדירה ממוקם בעיר לה פלאנייה, במרחק של 5 דקות הליכה ממרכזו. 20 דקות הליכה יקחו את האורחים לבר גריל Le Grizzli.
שדה תעופה הקרוב הוא אנסי-מייתת, במרחק של 115 ק"מ על דירת Residence Le Belvedere - Pieces 534, ותחנת אוטובוס Plagne Villages Sommet זה כ-10 דקות הליכה משם.
עוד +
פחות -
נא להמתין, אנחנו בודקים חדרים זמינים בשבילך.
מחפש מלונות
מתקנים
השרותים הפופולריים ביותר
- ללא חיות מחמד
מתקנים
כללי:
- ללא-עישון בכל החללים הפרטיים והציבוריים
- אין חנייה
- אין להביא חיות מחמד
מאפייני חדר:
- מתקני תה וקפה
- שירותי גיהוץ
מדיניות
צ'ק-אין: מ17:00 עד 20:00
צ'ק-אוט: מ08:00 עד 10:00
מפה
אטרקציות מקומיות
נמלי תעופה
- נמל התעופה אנסי-מייתת (115 ק"מ)
תחנות רכבת
- Telebus (800 מטר)
חוות דעת
כתוב ביקורת
100% ביקורות מאומתות
6 /10